GA DRILLING是一家致力于为工作群体设计有创意的工作环境的一家年轻、有活力的正在发展的家族企业。位于斯洛伐克。因此,我们团队试图找出这家公司重要的理念,并将精华提炼出来融入到建筑设计中。
因此,整个项目的主要理念是创造一个开放和连续的公共空间,封闭的工作区域与其相连。这个开放空间以两种方式贯穿整个建筑:水平与垂直,将内部与外部、物理和视觉感受连接起来。光线通过墙,楼板或者屋顶上的孔进入到室内,照亮整个建筑内部空间。建筑形态上的连续性打造出了一种透明感,简单的大厅和活动空间将变成公共空间。这种空间上的连续性(或无限性),成为一个公司发展、成长上的美好寓意。
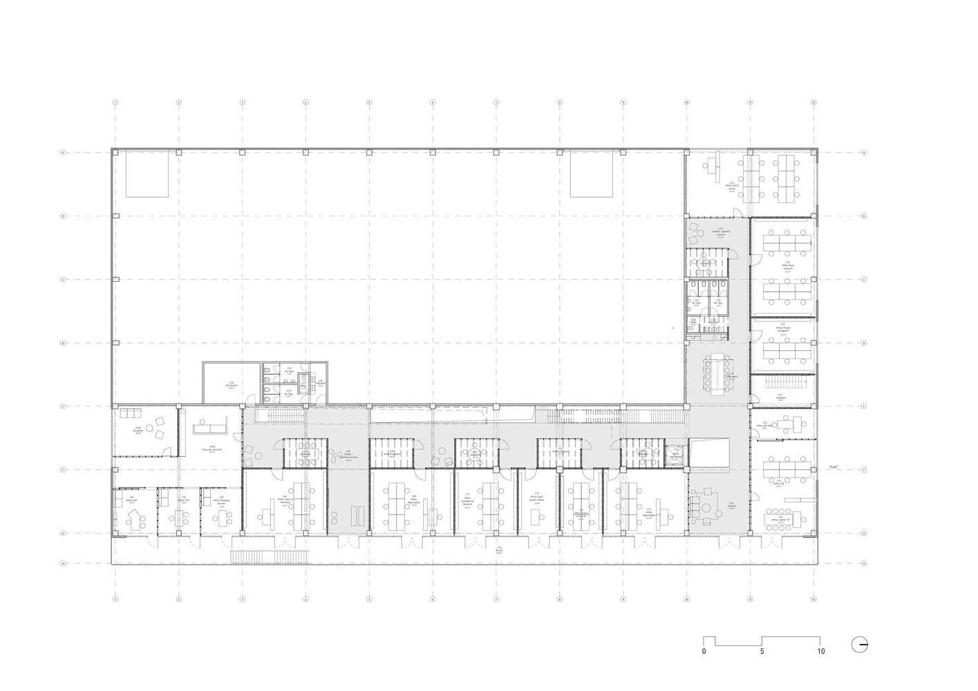
从功能上讲,该建筑分为三层:一楼——餐饮区和会议区、二楼——工作区和领导办公室,以及带屋顶露台的顶层——健身区。三层都有封闭的办公室盒子和开放的公共区域。
二楼是工作区和领导办公室,是由许多封闭的办公室盒子、半开放的会议室盒子和开放的公共空间组成的。它们按功能单元划分,通过主题放松区相互分隔。办公室的盒子通过一个宽敞的门廊与外部相连。在夏季,员工们可以将工作空间扩展到室外。顶层 (健身房)设计为开放式多功能屋顶盒子,与屋顶露台相连(尚未建造)。
在施工和材料方面,我们使用了简单的元素。主体结构是由预制混凝土结构和砌体组成,将布艺厅和行政区分开。办公盒子之间的分隔有轻型元素(石膏板、木框架结构)组成,便于拆卸和潜在的建筑物回收。覆盖层和外部结构由钢铁元素组成,外加一个简单的铁网作为植物的支撑。因此,未来建筑行业的特点应与自然环境相融合。
平、立面图:
项目分析图:
项目空间信息:
-
空间名称:GA DRILLING
-
空间类型:办公空间、工业风办公室
-
空间地址:斯洛伐克
-
设计公司:GutGut、Roman Zitnansky architecture
-
空间面积:2490平方米
-
空间主材:混凝土自流平、混凝土、木材、灯芯纹玻璃、金属网、PVC塑胶地板
-
空间摄影:Nora a Jakub
卓美设计(zhuomei)
找灵感看案例下素材,帮助设计师提升工作效率、开拓眼界 、 学好设计 ,一站式为你服务。平台提供全球案例、灵感图库、设计名师、环球导航、设计课程、设计社区,软件大全、实时直播、3d模型 、 Su模型 、 材质贴图 、 cad图纸 、 PS样机等素材下载。
● 官网站:zhuomei.com.cn
● 微信号:cpd2014
● 公众号:卓美设计
Open the zhuomei, open the linked world ! Make design easier。



























