Jesús Granada
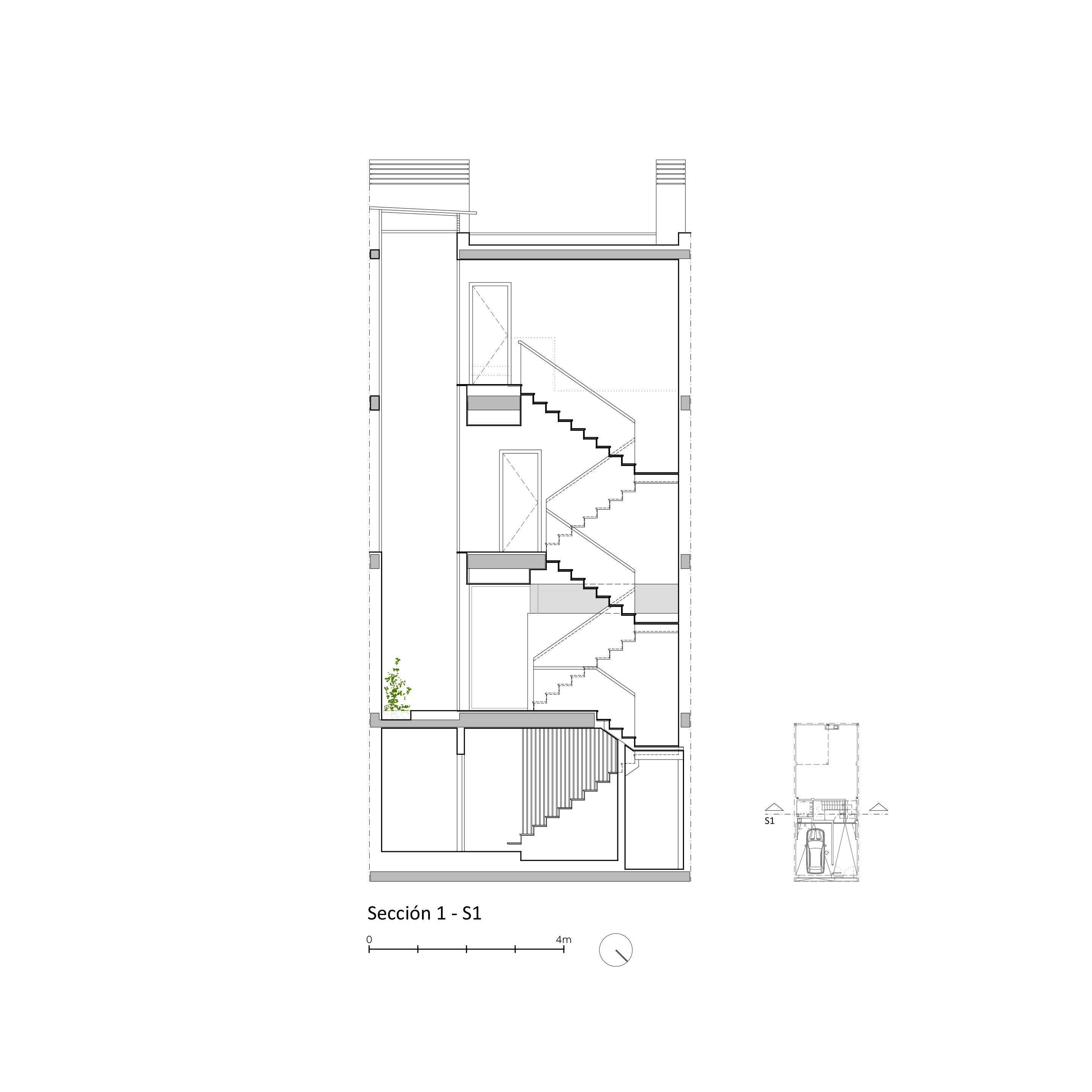
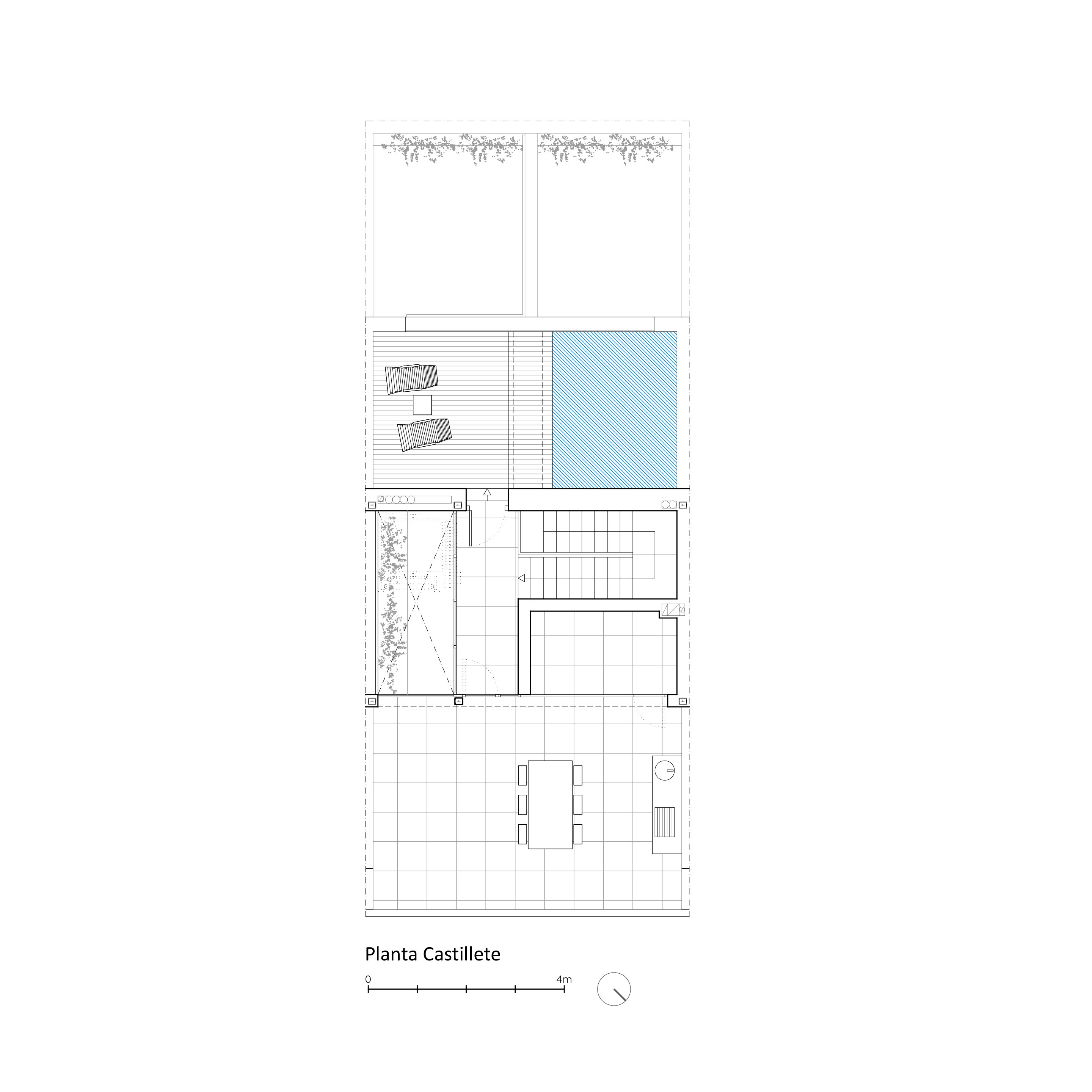
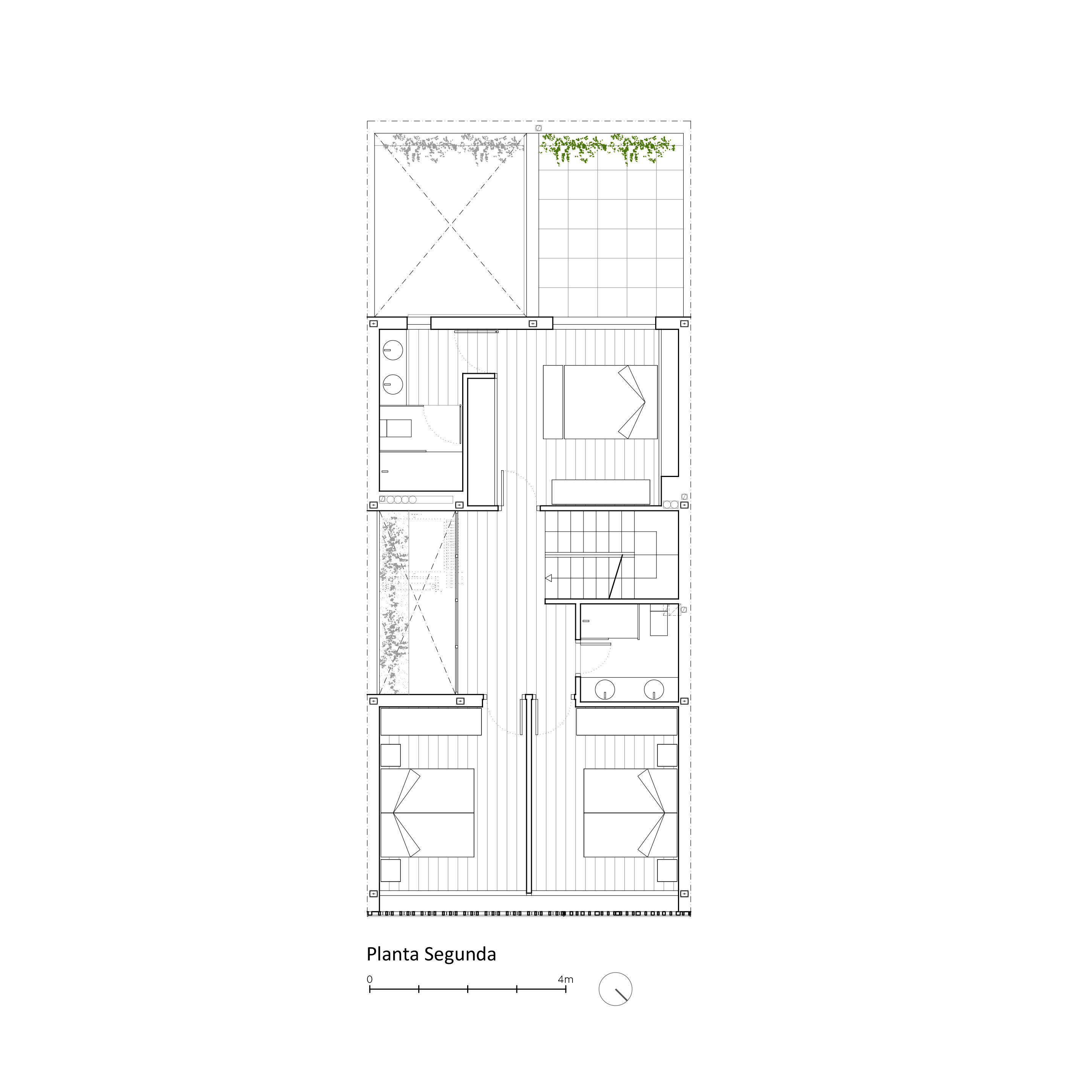
The house stands on a 6.60-metre frontage and 16.20-metre depth plot in the Arcángel district of Cordoba, an area of growth in the city in the mid-20th century on the immediate outskirts of the walled city. The housing programme involved squeezing the buildable area, the plot of land. Given the limited mobility of the volume, the project focused on managing the natural lighting-ventilation and organising the uses by levels, proposing a continuous spatiality horizontally and vertically, with spaces that open onto the narrow street (5m) as well as the interior courtyards and skylights.
The opening to the interior is resolved by large openings that connect terraces at different levels, absorbing the light reflected by the party walls. For the exterior opening, a façade is designed consisting of floor-to-ceiling openings that allow the rooms to extend beyond the plot. Privacy is provided by a second skin composed of two elements. The ground floor is configured as a plinth composed of a front of micro-perforated sheet metal enclosed by an exposed concrete frame – traced from the Fibonacci Succession – on which rests a veil that screens the views on the upper levels. This veil is composed of a glazed ceramic lattice that filters the views while reflecting all shades of light – from dawn to dusk – allowing one to see without being seen.
The project proposes the use of traditional local materials and construction elements – such as wood, ceramics and lattices – from a contemporary perspective, with clear references in contemporary Cordovan architecture such as the recent C3A by Nieto Sobejano Arquitectos or the lattices of the Mosque-Cathedral by Rafael de la Hoz.
The lattice became the absolute protagonist of the project from the outset. It is composed of extruded ceramic pieces with a trapezoidal matrix that permits a multitude of configurations, choosing a layout that enhances the isotropic sense of the mesh while offering the eye different readings of the base unit. A white glaze was chosen to enhance the reflection of light without compromising its chromatic richness. The pieces were placed with reinforced rows anchored to the slab fronts and to the perimeter plate. The central staircase made from steel sheeting and the rough Corian brickwork enhance the fluidity of the interior spaces and enrich the chromatic nuances of the light that characterises the domestic life of the dwelling between party walls, so typical of popular Andalusian architecture.
卓美设计(zhuomei)
卓美(ZhuoMei)全球设计师平台
找灵感看案例下素材,帮助设计师提升工作效率、学习成长、开拓眼界 、 学好设计 ,一站式为你服务。平台提供全球案例、灵感图库、设计名师、环球导航、设计课程、设计社区,软件大全、实时直播、3d模型 、 Su模型 、 材质贴图 、 cad图纸 、 PS样机等素材下载。
● 官网站:zhuomei.com.cn
● 微信号:cpd2014
● 公众号:卓美设计
Open the zhuomei, open the linked world ! Make design easier。
































































