Rafael Gamo
Casa Ballena is an art center designed for a Mexican artist who was looking to create a studio for Mexican and international artists, immersing them in the most unique experience in Los Cabos.
Its design emanates from excavation and earthmoving, taking advantage of the topography in order to play with different heights and create a natural buffer that allows both the control and direction of the views, as well as the creation of a private and internal experience. The earth that was removed to set the platforms, was reused to build the rammed earth walls.
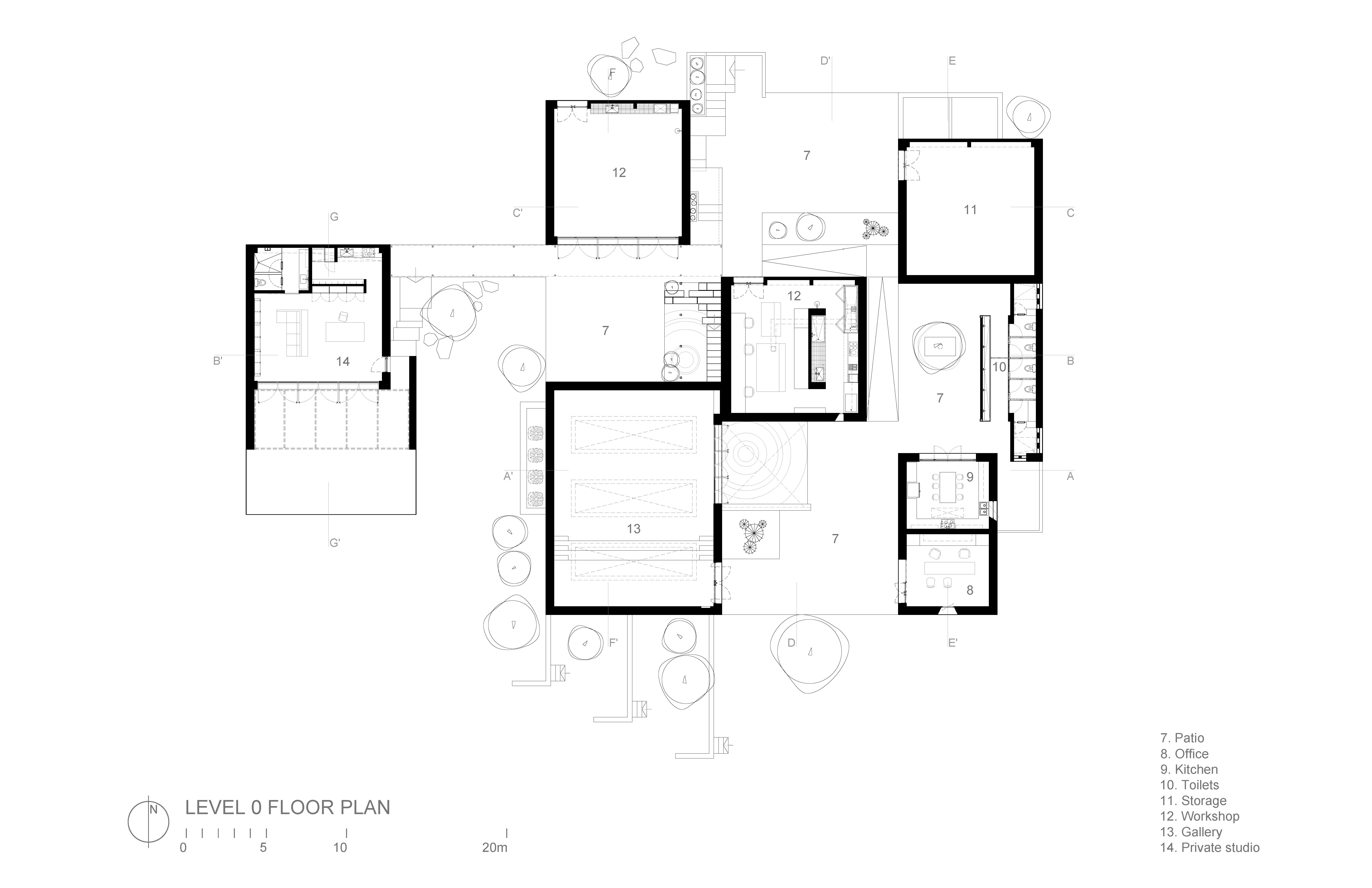
This art center offers three workshops, an exhibition space, several multi-purpose patios, administrative area, dining and living halls, warehouses and a 7,000m2 natural area that shelters the native vegetation of the region.
The building system is rammed earth, a material that brings character to buildings through its textures, also creates a micro-weather necessary for the climatic conditions in Los Cabos and acoustically isolates the workshops.
The orientation was planned according to each building’s function, positioning the workshops facing north, while the living and dining halls, administrative area, and future residences face south with views towards the marina at Puerto Los Cabos. Each building zoning helps in providing shade in the different patios and responds to the privacy needs required by each area, from the most public to the most private.
The relationship with nature is very important to this project; the buildings concentrate on the terrain achieving an internal experience that brings privacy to artists across patios which all have different purposes: reception area, or a place to rest, work or socialize, some being more private than others.
The gallery which is north-south oriented has natural overhead light which, given the geometry of the roof, allow a better diffusion of light for the exhibited art pieces. The gallery, together with the painting and typography workshops have the same orientation giving the artists assurance that their work will have the same light exposition since the early creative stages until exhibition. As for the print workshop, has controlled light openings according to the functions performed in this workshop.
The workshops and the gallery enclose the main patio: a work and contemplation space for artists with a water mirror that gives character and makes it more user friendly. The gallery’s rooftop can be accessed from this patio; a rooftop that turns into a lookout point and botanical garden thanks to the planters which give home to endemic grass and which are also the structure to provide light inside of the gallery. At the same time, this gallery rooftop is linked to the print workshop rooftop: a perfect space to socialize under the shadow of the pergola.
The private studio which is separated from the rest, not only serves as paint workshop for artists, it is also a resting hall furnished with bathroom and kitchen. It also has a terrace facing south and covered by a pergola, providing a peaceful space to contemplate the landscape and the marina.
Rafael Gamo
Rafael Gamo
Rafael Gamo
Rafael Gamo
Rafael Gamo
Rafael Gamo
Rafael Gamo
Rafael Gamo
Rafael Gamo
Rafael Gamo
Rory Gardiner
Rory Gardiner
Rory Gardiner
Rory Gardiner
Rory Gardiner
Rory Gardiner
Rory Gardiner
Rory Gardiner
Rory Gardiner
Rory Gardiner
Rory Gardiner
Rory Gardiner
Rory Gardiner
Rory Gardiner
Rima Design Group
Rima Design Group
Rima Design Group
Rima Design Group
Rima Design Group
Rima Design Group
Rima Design Group
Rima Design Group
Rima Design Group
Rima Design Group
Rima Design Group
卓美设计(zhuomei)
卓美(ZhuoMei)全球设计师平台
找灵感看案例下素材,帮助设计师提升工作效率、学习成长、开拓眼界 、 学好设计 ,一站式为你服务。平台提供全球案例、灵感图库、设计名师、环球导航、设计课程、设计社区,软件大全、实时直播、3d模型 、 Su模型 、 材质贴图 、 cad图纸 、 PS样机等素材下载。
● 官网站:zhuomei.com.cn
● 微信号:cpd2014
● 公众号:卓美设计
Open the zhuomei, open the linked world ! Make design easier。


